1 pièces appartement dans Rosny sous bois
-
Surface
- 25 m²
-
Type de propriété
- Appartement
-
Pièces
- 1 pièce
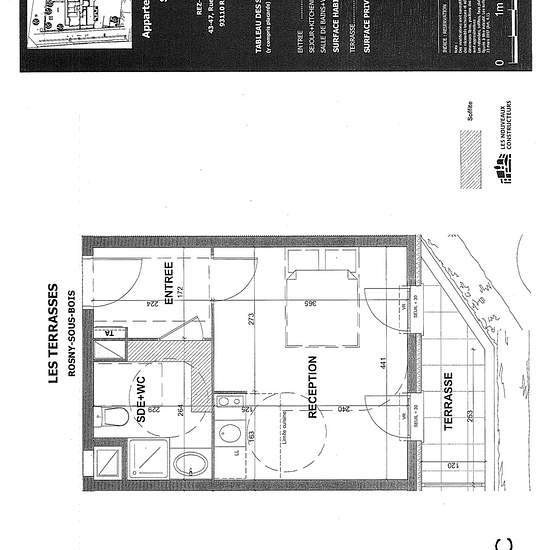
Dans une résidence de 2013 securisée avec Interphone et digicode . 20 mn a pied du metro et RER E de Rosny sous bois Perrier . Studio de 24,93 m2 situé au rez-de-chaussée comprenant : entrée, pièce principale avec cuisine, salle d'eau avec WC. Terrasse de 4m2. Chauffage et eau chaude inclus dans la provision des charges. Libre de suite.
- Louer
- 620 € par mois
- Ville
- 93110, Rosny sous bois
- Durée de location
- -
- Propriétaire vérifié
- Oui
- Date
- Aujourd'hui
- Disponible
- Contacter le propriétaire
- Services
- Contacter le propriétaire
- Dépôt de garantie
- Contacter le propriétaire
- Avance sur loyer
- Contacter le propriétaire
Emplacement