1 pièces appartement dans Royan
-
Surface
- 23 m²
-
Type de propriété
- Appartement
-
Pièces
- 1 pièce
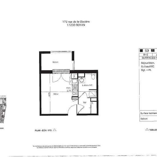
Situé au 2ème étage d'une résidence, appartement Studio de 23m² comprenant une entrée avec placard, une cuisine équipée (meubles hauts et bas, plaque vitrocéramique 2 feux, hotte aspirante, réfrigérateur table top) ouverte sur le séjour et donnant sur un balcon de 6m², salle d'eau avec WC, une place de parking. La résidence se trouve à moins de 2 km du front de mer de Royan et est à proximité de toutes les commodités (supermarchés, pharmacies, poste, écoles maternelles et primaires, lycées, cinéma... ) mais également du Centre commercial Val...
- Louer
- 412 € par mois
- Ville
- 17200, Royan
- Durée de location
- -
- Propriétaire vérifié
- Oui
- Date
- Il y a 17 jours
- Disponible
- Contacter le propriétaire
- Services
- Contacter le propriétaire
- Dépôt de garantie
- Contacter le propriétaire
- Avance sur loyer
- Contacter le propriétaire
Emplacement