1 pièces appartement dans St jean d illac
-
Surface
- 30 m²
-
Type de propriété
- Appartement
-
Pièces
- 1 pièce
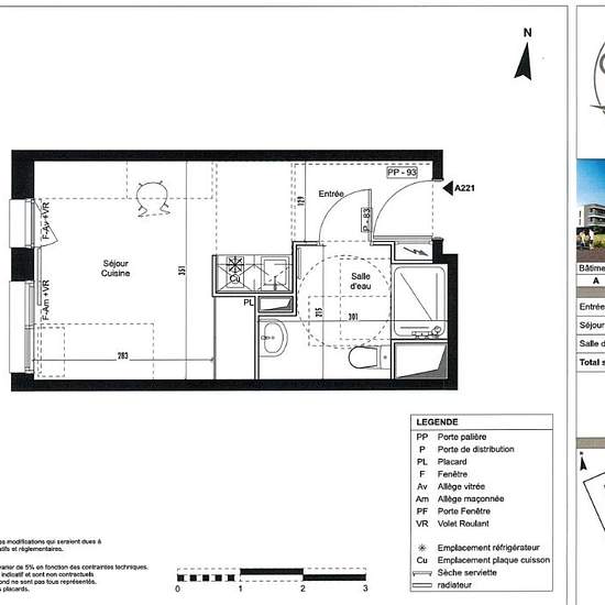
CAMPUS D'ILLAC, allée des dunes. Situé a proximité de l'école ELISA. Studio de 21.34m² qui comprend une pièce de vie avec cuisine ouverte et équipée (plaque de cuisson, hotte et frigo top) avec vue sur la forêt et une salle d'eau avec wc. Laverie automatique situé dans la résidence. Disponible dès maintenant. Loyer CC: 531.12€ (eau froide, eau chaude). Honoraires: 277.42 euros dont 64.02 euros pour l'état des lieux. Dépôt de garantie: 481.12€ infos et contact par téléphone: Ne ratez plus votre futur logement en vous abonnant à notre compte i...
- Louer
- 481 € par mois
- Ville
- 33127, St jean d illac
- Durée de location
- -
- Propriétaire vérifié
- Oui
- Date
- Il y a 7 jours
- Disponible
- Contacter le propriétaire
- Services
- Contacter le propriétaire
- Dépôt de garantie
- Contacter le propriétaire
- Avance sur loyer
- Contacter le propriétaire
Emplacement