1 pièces appartement dans Verneuil sur seine
-
Surface
- 29 m²
-
Type de propriété
- Appartement
-
Pièces
- 1 pièce
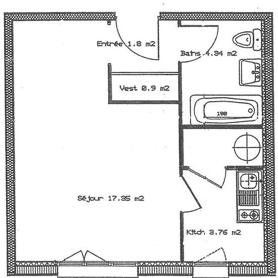
Appartement À Louer. Petite résidence sur les Hauteurs de Verneuil Sur Seine, agréable studio de 29.68 m2 comprenant : entrée avec placard, pièce principale, cuisine équipée (plaque de cuisson, hotte aspirante), cellier, salle de bains avec wc. Parking extérieur privatif - Chauffage individuel électrique. Honoraires de visite, constitution dossier , rédaction de bail : 295.00 € TTC Honoraires état des lieux : 70.00 € TTC DISPONIBLE LE 1er Novembre 2025
- Louer
- 568 € par mois
- Durée de location
- -
- Propriétaire vérifié
- Oui
- Date
- Il y a 2 jours
- Disponible
- Contacter le propriétaire
- Services
- 50 €
- Dépôt de garantie
- 568 €
- Avance sur loyer
- Contacter le propriétaire
Emplacement