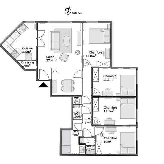
11 m² chambre dans Asnieres sur seine
-
Surface
- 11 m²
-
Type de propriété
- Chambre
-
Pièces
- 1 pièce
Disponible dès maintenant
This spacious and comfortable room has been designed for you dear roomie! Practical and functional, the room is equipped with high quality bedding (140x200cm), a beautiful wardrobe, a night table and a true office space for your exams or your home office days! All of this in a cheerful and warm atmosphere. In addition, you have access to a shared bathroom Beautiful flatshare in Asnières-sur-Seine ! Discover Asnières Zola 3, our cosy and freshly renovated contemporary-style apartment. Close to local shops and restaurants, it is easily accessi...
- Louer
- 833 € par mois
- Durée de location
- -
- Propriétaire vérifié
- Oui
- Date
- Il y a 8 jours
- Disponible
- Disponible dès maintenant
- Services
- Contacter le propriétaire
- Dépôt de garantie
- 833 €
- Avance sur loyer
- Contacter le propriétaire
Emplacement