2 pièces appartement dans Avignon
-
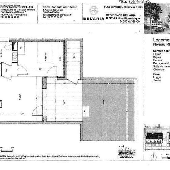
Surface
- 44 m²
-
Type de propriété
- Appartement
-
Pièces
- 2 pièces
À LOUER : Découvrez cet appartement T2 neuf en rez-de-jardin idéalement situé à Avignon, à proximité d'Agroparc, des centre commerciaux et des autoroutes. Avec une superficie de 42.2 m², cet espace de vie lumineux et accueillant est parfait pour les couples en quête de confort et de praticité. Dès l'entrée, vous serez séduit par le vaste salon de 14.9 m², un lieu convivial où vous pourrez vous détendre ou recevoir vos amis donnant accès sur un agréable jardin de 26.1m². La cuisine, aménagée et équipée, vous permettra de concocter de délicieu...
- Louer
- 765 € par mois
- Ville
- 84000, Avignon
- Durée de location
- -
- Propriétaire vérifié
- Oui
- Date
- Hier
- Disponible
- Contacter le propriétaire
- Services
- Contacter le propriétaire
- Dépôt de garantie
- Contacter le propriétaire
- Avance sur loyer
- Contacter le propriétaire
Emplacement