2 pièces appartement dans Bagneux

Surface
49 m²
Type de propriété
Appartement
Pièces
2 pièces

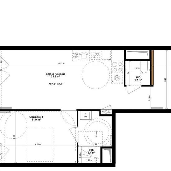
Appartement de 49 m² à louer sur Bagneux 2 / 3 pièces au 2ème étage d'un immeuble neuf, traversant Est-Ouest, très lumineux. À 300m de la ligne 4 (Lucie Aubrac) et 200m de la future ligne 15 (sur une place commerçante); à 600m du RER B (Arcueil Cachan). Proche Montrouge. Au calme dans une allée arborée, au centre du nouvel écoquartier Victor Hugo. Distribution : 1 chambre (12 m²), une grande salle d'eau et WC séparé, Séjour avec cuisine (24 m²) et un bureau (8 m²) à l'entrée séparé de l'espace de vie, idéal pour le télétravail. Une Terrace d...

Louer
1 400 € par mois
Durée de location
-
Propriétaire vérifié
Oui
Date
Aujourd'hui
Disponible
Contacter le propriétaire
Services
Contacter le propriétaire
Dépôt de garantie
2 500 €
Avance sur loyer
Contacter le propriétaire
Emplacement