2 pièces appartement dans Bassens
-
Surface
- 39 m²
-
Type de propriété
- Appartement
-
Pièces
- 2 pièces
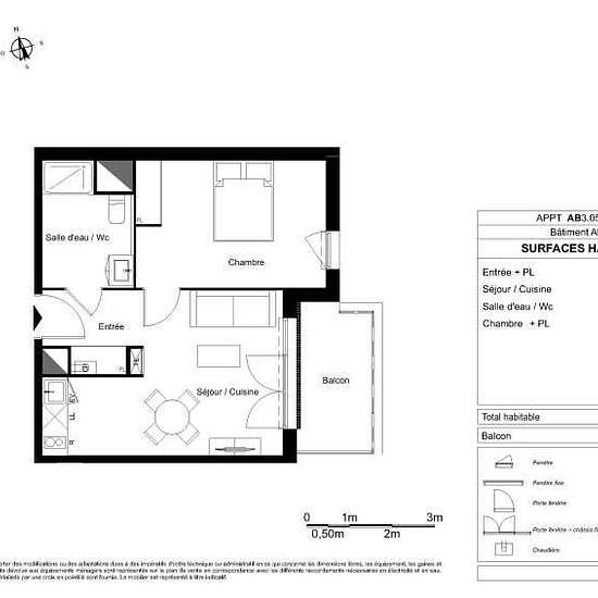
Aux portes de Bordeaux, découvrez le charme de Bassens et son cadre verdoyant. Nous vous proposons un agréable appartement T2 situé dans une résidence récente, offrant confort et praticité. Ce logement se compose dEURune entrée, d'un séjour lumineux avec cuisine équipée (évier inox, plaque 2 feux, hotte, meubles hauts et bas), d'une chambre avec placard intégré, d'une salle d'eau aménagée avec WC, ainsi que d'un balcon de 5,95 m² pour profiter de l'extérieur. Un parking extérieur complète ce bien. Idéalement situé, vous bénéficiez de la prox...
- Louer
- 566 € par mois
- Ville
- 33530, Bassens
- Durée de location
- -
- Propriétaire vérifié
- Oui
- Date
- Il y a 19 jours
- Disponible
- Contacter le propriétaire
- Services
- Contacter le propriétaire
- Dépôt de garantie
- Contacter le propriétaire
- Avance sur loyer
- Contacter le propriétaire
Emplacement