2 pièces appartement dans Bezons
-
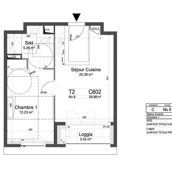
Surface
- 39 m²
-
Type de propriété
- Appartement
-
Pièces
- 2 pièces
BEZONS T2 MEUBLÉ AVEC LOGGIA - 6ème ÉTAGE AVEC ASCENSEUR Situé à Bezons, dans un quartier dynamique et recherché, ce joli appartement T2 entièrement meublé vous séduira par sa luminosité et son agencement moderne. Niché au 6ème étage avec ascenseur, il offre un cadre de vie confortable et parfaitement optimisé. Le logement se compose d'un séjour lumineux ouvrant sur une agréable loggia , idéal pour profiter d'un espace extérieur. La cuisine entièrement équipée apporte une vraie touche de praticité au quotidien. Vous trouverez également une c...
- Louer
- 1 050 € par mois
- Ville
- 95870, Bezons
- Durée de location
- -
- Propriétaire vérifié
- Oui
- Date
- Aujourd'hui
- Disponible
- Contacter le propriétaire
- Services
- 120 €
- Dépôt de garantie
- 2 100 €
- Avance sur loyer
- Contacter le propriétaire
Emplacement