2 pièces appartement dans Blagnac
-
Surface
- 49 m²
-
Type de propriété
- Appartement
-
Pièces
- 2 pièces
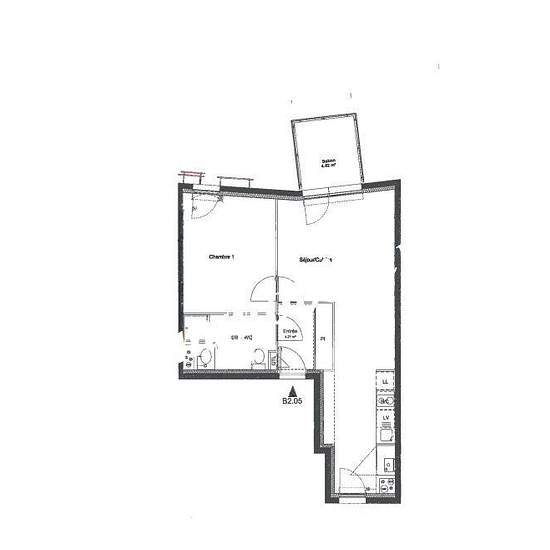
31700 BLAGNAC Andromède. Appartement Type 2 loué meublé de 49,26 m² au deuxième et dernier étage (asc') Résidence récente Bâtiment Basse Consommation Chauffage individuel au gaz de ville CE : C, Deux places de parkings en sous-sol et cellier au Rez-de -chaussée. Loyer 678,37 €, Dépôt de garantie 1 356,74€, provisions 116 € (Pour la consommation individuelle d'eau, la taxe d'enlèvement des ordures ménagères, la copropriété et le contrat de maintenance de la chaudière avec régularisation annuelle) Honoraires 612,50 € (470,40 € pour la rédactio...
- Louer
- 794 € par mois
- Ville
- 31700, Blagnac
- Durée de location
- -
- Propriétaire vérifié
- Oui
- Date
- Il y a 19 jours
- Disponible
- Contacter le propriétaire
- Services
- Contacter le propriétaire
- Dépôt de garantie
- 1 356 €
- Avance sur loyer
- Contacter le propriétaire
Emplacement