2 pièces appartement dans Cagnes sur mer
-
Surface
- 47 m²
-
Type de propriété
- Appartement
-
Pièces
- 2 pièces
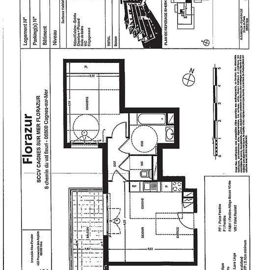
QUIETIS GESTION // RESIDENCE FLORAZUR DISPONIBLE LE 27/02/2026 Contactez notre agent commercial Madame ESPADINHA Danielle au 06x58x47x63x14 ou par mail : EMAIL pour visiter cet appartement T2 de 46.95m² situé au 3eme étage. Comprenant un séjour donnant sur une cuisine équipée d'un plan de travail, four, évier, meubles bas. Une chambre avec placard, une salle de bains et un WC indépendant. Deux places de parking en sous-sol. Honoraires de 615,98 € TTC à la charge du locataire comprenant 142,25 € TTC pour l'état des lieux. Loyer de base 781.00...
- Louer
- 882 € par mois
- Ville
- 06800, Cagnes sur mer
- Durée de location
- -
- Propriétaire vérifié
- Oui
- Date
- Il y a 2 jours
- Disponible
- Contacter le propriétaire
- Services
- Contacter le propriétaire
- Dépôt de garantie
- Contacter le propriétaire
- Avance sur loyer
- Contacter le propriétaire
Emplacement