2 pièces appartement dans Castelnau le lez

Surface
30 m²
Type de propriété
Appartement
Pièces
2 pièces

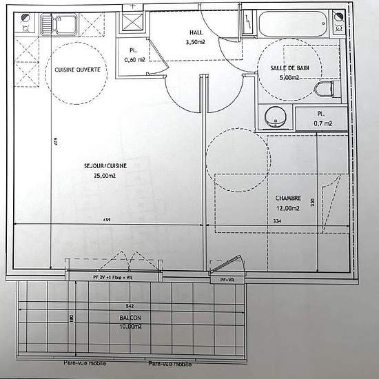
Appartement T2 de 46,60m2 au 3eme étage avec ascenseur. L’appartement comprend une entrée avec placard, une pièce de vie ouverte sur la terrasse, une chambre avec placard et salle d’eau. Un garage fermé est en sous-sol. Bail vide de 3ans Loyer hors charges : 700€ Charges de copropriété : 90€ (Ascenseur, local vélo, visiophone, eau chaude collective) Frais d’agence : 419€ Dépôt de garantie : 700€ Libre le 6 février 2026 Seront acceptés uniquement les dossiers VISALE pour obtenir une visite. Contact via messagerie Marketplace uniquement.

Louer
790 € par mois
Durée de location
-
Propriétaire vérifié
Non
Date
Il y a 5 jours
Disponible
06/02/2026
Services
Contacter le propriétaire
Dépôt de garantie
Contacter le propriétaire
Avance sur loyer
Contacter le propriétaire
Emplacement