2 pièces appartement dans Cavaillon
-
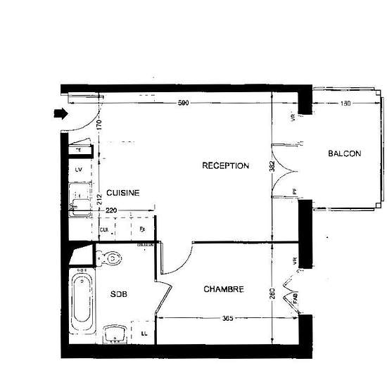
Surface
- 37 m²
-
Type de propriété
- Appartement
-
Pièces
- 2 pièces
Cavaillon, à louer appartement de 37 m² avec 2 pièces dont 1 chambre. Location de particulier 589 euros mensuel charges comprises. Disponible le 25 / 10 / 25. Avantages du logement : - Stationnement - Balcon Ce propriétaire utilise LocService pour sélectionner ses futurs locataires. Pour proposer directement votre candidature pour ce logement ET toutes les locations conformes à votre recherche, il suffit de vous inscrire sur LocService. Les propriétaires vous contactent directement et les locations sont certifiées sans frais d'agence. Commen...
- Louer
- 589 € par mois
- Ville
- 84300, Cavaillon
- Durée de location
- -
- Propriétaire vérifié
- Oui
- Date
- Il y a 17 jours
- Disponible
- Contacter le propriétaire
- Services
- Contacter le propriétaire
- Dépôt de garantie
- 519 €
- Avance sur loyer
- Contacter le propriétaire
Emplacement