2 pièces appartement dans Cayenne
-
Surface
- 43 m²
-
Type de propriété
- Appartement
-
Pièces
- 2 pièces
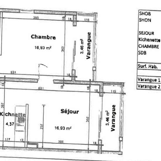
Cet appartement de type 2 d'une superficie habitable de 43.16 m2 au sein d'une copropriété de 48 logement sur deux bâtiments est très bien situé sur la route de Baduel. Il comprend un séjour, une cuisine , une chambre climatisée , deux balcons et une une place de parking. Il est disponible immédiatement dans cette résidence sécurisée avec portail et digicode. Loyer mensuel : 690 euros + 40 euros de charges Honoraire à la charge du locataire : 561.08 euros dont 129,48 euros pour l'état des lieux. Dépôt de garantie : 690 euros Disponibilité Im...
- Louer
- 730 € par mois
- Ville
- 97300, Cayenne
- Durée de location
- -
- Propriétaire vérifié
- Oui
- Date
- Aujourd'hui
- Disponible
- Contacter le propriétaire
- Services
- Contacter le propriétaire
- Dépôt de garantie
- Contacter le propriétaire
- Avance sur loyer
- Contacter le propriétaire
Emplacement