2 pièces appartement dans Chambery
-
Surface
- 45 m²
-
Type de propriété
- Appartement
-
Pièces
- 2 pièces
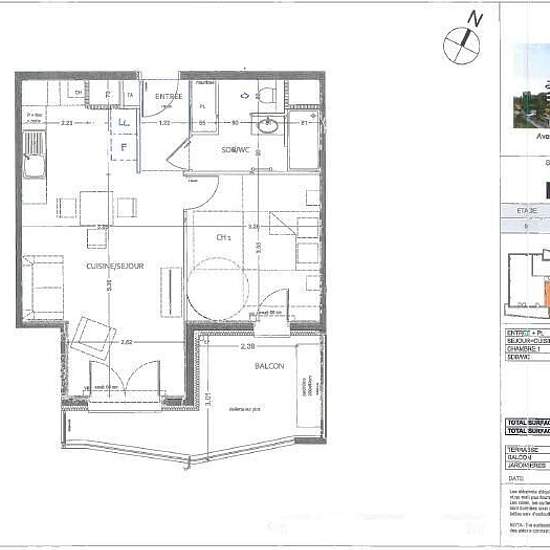
CITYA GENERALE IMMOBILIERE Appartement Chambéry - T2 de 45,28 m² Venez découvrir, en exclusivité sur la commune de Chambéry, un appartement de type 2 non meublé de 45,28 m² situé au 6ème et dernier étage avec ascenseur d'une copropriété récente sécurisée par la présence d'un visiophone. L'appartement est composé d'un séjour avec cuisine aménagée et équipée, d'une chambre, d'une salle de bain et d'un balcon. Un garage vient compléter cet appartement avec un loyer de 56 €euros / mois (à louer obligatoirement avec l'appartement). Disponible IMM...
- Louer
- 633 € par mois
- Ville
- 73000, Chambery
- Durée de location
- -
- Propriétaire vérifié
- Oui
- Date
- Il y a 2 jours
- Disponible
- Contacter le propriétaire
- Services
- Contacter le propriétaire
- Dépôt de garantie
- 598 €
- Avance sur loyer
- Contacter le propriétaire
Emplacement