2 pièces appartement dans Chatenay malabry
-
Surface
- 50 m²
-
Type de propriété
- Appartement
-
Pièces
- 2 pièces
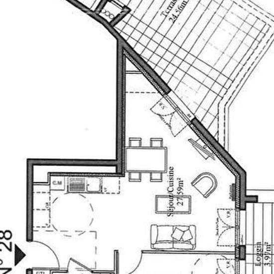
Appartement Le Plessis Robinson 2 pièce(s) 44.37 m2. Dispositif de défiscalisation PINEL, Résidence récente de 2018, rue du Moulin Fidel, Proximité marché, commerces. Appartement 2 pièces de 44,37m2 exposé Sud Est, comprenant séjour avec cuisine ouverte aménagé, non-équipée, Grande TERRASSE de 24,56 m2 et LOGGIA, une chambre et une salle de bains avec WC. Une place de PARKING en sous-sol. Chauffage et eau chaude individuels gaz. Loyer charges comprises 1 085,83 euros dont 95 euros de provision de charges. Dépôt de garantie 990,83 Euros. Hono...
- Louer
- 990 € par mois
- Ville
- 92290, Chatenay malabry
- Durée de location
- -
- Propriétaire vérifié
- Oui
- Date
- Aujourd'hui
- Disponible
- Contacter le propriétaire
- Services
- 95 €
- Dépôt de garantie
- 990 €
- Avance sur loyer
- Contacter le propriétaire
Emplacement