2 pièces appartement dans Clermont ferrand
-
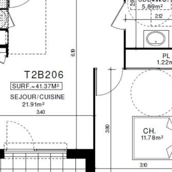
Surface
- 41 m²
-
Type de propriété
- Appartement
-
Pièces
- 2 pièces
B206 LE CLEMENTEL : SUPERBE T2 DANS RESIDENCE NEUVE BBC DE STANDING. BELLE PIECE A VIVRE DE 22 M² avec cuisine US aménagée (plaques vitro, four, hotte, meubles hauts et bas) ouvrant sur un balcon sans vis-à-vis. Une chambre en sol parquet avec placard mural. Salle de bain avec meuble sous vasque et sèche-serviettes. Place de parking privative en sous-sol sécurisé. CHAUFFAGE IND AU ELEC. VIDEOPHONE. PROCHE TOUS COMMERCES ET DES TRANSPORTS. Consommation d'énergie totale entre 335 EUR et 453 EUR par an (prix moyens des énergies indexés au 2021-...
- Louer
- 480 € par mois
- Ville
- 63100, Clermont ferrand
- Durée de location
- -
- Propriétaire vérifié
- Oui
- Date
- Hier
- Disponible
- Contacter le propriétaire
- Services
- 55 €
- Dépôt de garantie
- 480 €
- Avance sur loyer
- Contacter le propriétaire
Emplacement