2 pièces appartement dans Clermont ferrand
-
Surface
- 38 m²
-
Type de propriété
- Appartement
-
Pièces
- 2 pièces
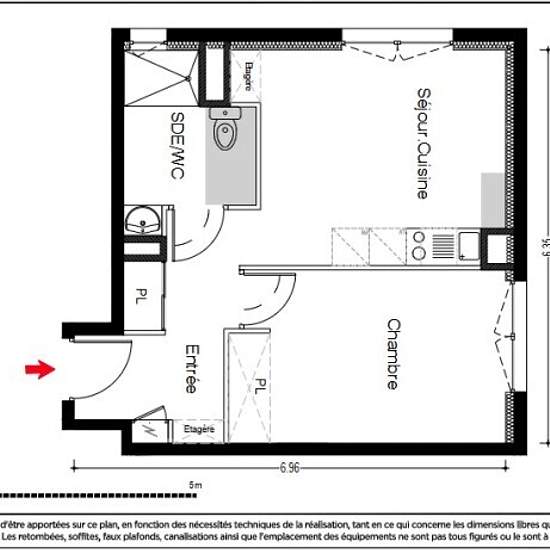
A proximité immédiate des universités, des écoles de Clermont-Ferrand, commerces. Transports : accès bus, tramway au pied de la résidence Vous recherchez un T2 meublé confortable dans une résidence étudiante moderne ? Installez-vous au 1er étage dans un appartement lumineux avec cuisine équipée, entrée avec placard, salle d'eau avec WC et loggia pour profiter de l'extérieur. Vous disposez également d'une place de parking en sous-sol, pratique et sécurisée. Dans la résidence, vous apprécierez une salle commune conviviale avec coin TV, coin cu...
- Louer
- 643 € par mois
- Ville
- 63100, Clermont ferrand
- Durée de location
- -
- Propriétaire vérifié
- Oui
- Date
- Il y a 8 jours
- Disponible
- Contacter le propriétaire
- Services
- Contacter le propriétaire
- Dépôt de garantie
- Contacter le propriétaire
- Avance sur loyer
- Contacter le propriétaire
Emplacement