2 pièces appartement dans Cluses
-
Surface
- 40 m²
-
Type de propriété
- Appartement
-
Pièces
- 2 pièces
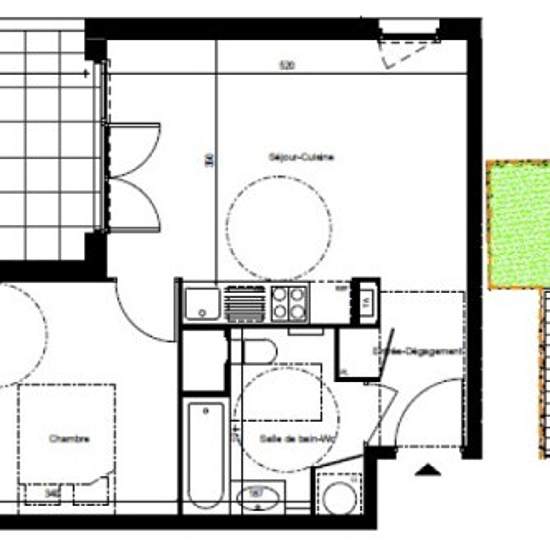
C002 Le Clusoé - SUPERBE TERRASSE ET JARDIN PRIVARIF DE 83 M² POUR CE BEAU T2 CALME DE 40 M² SITUE DANS RESIDENCE RECENTE BBC DE STANDING. L'appartement est composé d'un séjour avec cuisine US (meubles haut et bas, hotte, plaque de cuisson et four) donnant sur terrasse, une chambre avec parquet au sol avec un accès à la terrasse, une salle de bain aménagée avec meuble sous vasque et sèche serviette. Garage fermé en sous-sol et une place de parking. Visiophone. Consommation d'énergie totale entre 685EUR et 937EUR par an (prix moyens des énerg...
- Louer
- 570 € par mois
- Ville
- 74300, Cluses
- Durée de location
- -
- Propriétaire vérifié
- Oui
- Date
- Il y a 2 jours
- Disponible
- Contacter le propriétaire
- Services
- 89 €
- Dépôt de garantie
- 570 €
- Avance sur loyer
- Contacter le propriétaire
Emplacement