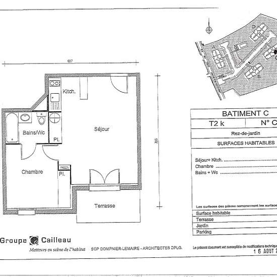
2 pièces appartement dans Creuzier le vieux
-
Surface
- 40 m²
-
Type de propriété
- Appartement
-
Pièces
- 2 pièces
La résidence est idéalement située dans le quartier résidentiel des Pins, un environnement calme et verdoyant qui invite à la sérénité. Elle bénéficie d'une piscine et se trouve à seulement dix minutes du centre-ville de Vichy, tout en étant proche de la zone industrielle de Vichy Rhue, ce qui en fait un emplacement pratique et agréable. Nous vous proposons un appartement T2 offrant des prestations de qualité. Dès l'entrée, vous découvrirez un placard intégré qui apporte un confort supplémentaire. Le séjour lumineux s'ouvre sur une cuisine é...
- Louer
- 440 € par mois
- Ville
- 03300, Creuzier le vieux
- Durée de location
- -
- Propriétaire vérifié
- Oui
- Date
- Hier
- Disponible
- Contacter le propriétaire
- Services
- 66 €
- Dépôt de garantie
- 440 €
- Avance sur loyer
- Contacter le propriétaire
Emplacement