2 pièces appartement dans Dinard
-
Surface
- 35 m²
-
Type de propriété
- Appartement
-
Pièces
- 2 pièces
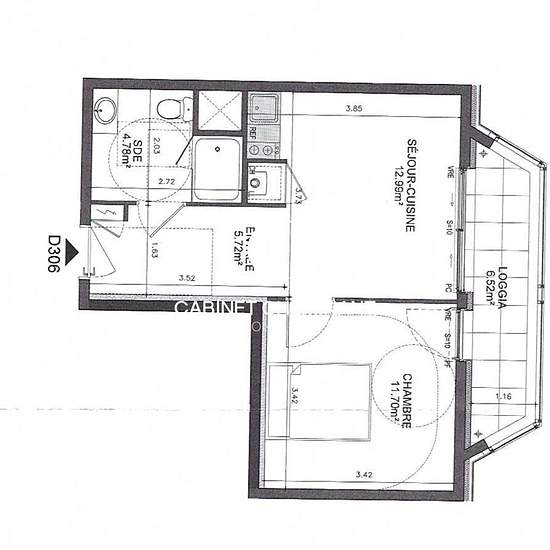
A louer sur DINARD, dans la toute nouvelle résidence NEWQUAY sur les hauteurs de DINARD, sur l'ancien quartier de la gare, un endroit dynamique et agréable. Avec accès rapide au marché et au centre ville, proche des plages et de la voie verte. Vous serrez également à proximité de nombreux commerces et de transports en commun. Cet appartement type 2 disponible le 30 avril 2026, est d'une superficie d'environs 35,19m². Il est composé d'une entrée avec placard d'une pièce de vie avec son coin cuisine équipée aménagée (évier, plaque, frigidaire)...
- Louer
- 538 € par mois
- Ville
- 35800, Dinard
- Durée de location
- -
- Propriétaire vérifié
- Oui
- Date
- Hier
- Disponible
- Contacter le propriétaire
- Services
- Contacter le propriétaire
- Dépôt de garantie
- Contacter le propriétaire
- Avance sur loyer
- Contacter le propriétaire
Emplacement