2 pièces appartement dans Epinay sur orge
-
Surface
- 60 m²
-
Type de propriété
- Appartement
-
Pièces
- 2 pièces
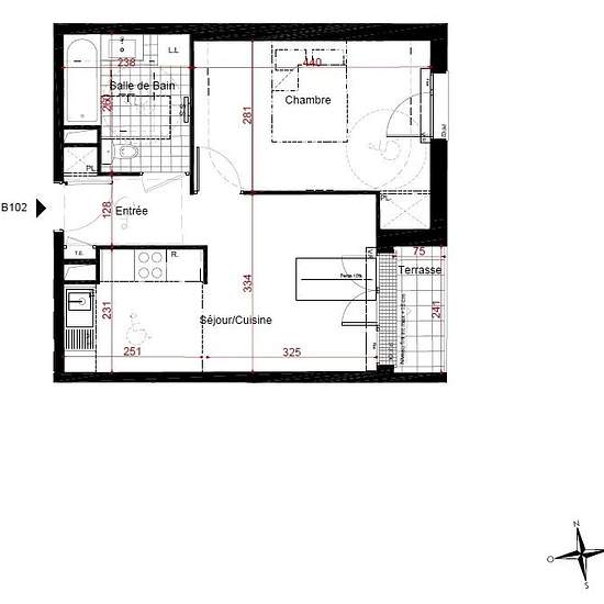
DEUX PIECES VIDE de 38,73m² au 1er étage avec ascenseur dans une résidence neuve située au 55-57 avenue de La Cour de France, située à 10 min en transport de la Gare de Juvisy sur Orge (RER C / D). L'immeuble est également à proximité de tous les services et commodités. Il est composé d'une entrée avec placard, d'un séjour sur un balcon de 2,26m², une cuisine US aménagée et équipée, une chambre avec placard et une salle de bains avec WC. Disponible en Mai 2024. Une place de parking en sous-sol. Locaux vélos sécurisés. - Certifiée NF Habitat ...
- Louer
- 786 € par mois
- Ville
- 91360, Epinay sur orge
- Durée de location
- -
- Propriétaire vérifié
- Oui
- Date
- Aujourd'hui
- Disponible
- Contacter le propriétaire
- Services
- Contacter le propriétaire
- Dépôt de garantie
- Contacter le propriétaire
- Avance sur loyer
- Contacter le propriétaire
Emplacement