2 pièces appartement dans Gennes val de loire
-
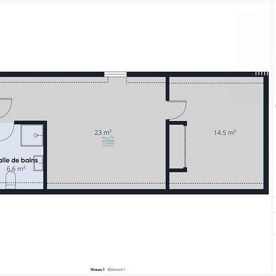
Surface
- 34 m²
-
Type de propriété
- Appartement
-
Pièces
- 2 pièces
À seulement quelques pas du centre bourg des Rosiers sur Loire, dans une propriété privée cet appartement vous séduira par son charme discret et son atmosphère chaleureuse. Cet appartement au 1 er étage de près de 35 m², entièrement neuf avec des matériaux de qualité, offre un cadre de vie calme et ensoleillé. Dès l'entrée, les volumes généreux ,la lumière naturelle ainsi que les poutres en bois apportent une sensation naturelle. L'espace de vie, baigné de soleil grâce à ses nombreuses fenêtres confirme le sentiment de cocooning. la cuisine ...
- Louer
- 655 € par mois
- Durée de location
- -
- Propriétaire vérifié
- Oui
- Date
- Aujourd'hui
- Disponible
- Contacter le propriétaire
- Services
- Contacter le propriétaire
- Dépôt de garantie
- Contacter le propriétaire
- Avance sur loyer
- Contacter le propriétaire
Emplacement