2 pièces appartement dans Gentilly
-
Surface
- 48 m²
-
Type de propriété
- Appartement
-
Pièces
- 2 pièces
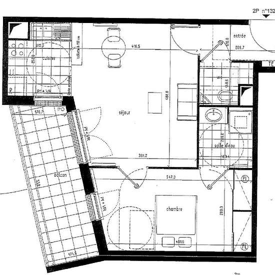
Idéalement situé à deux pas de Paris et de la Cité Universitaire, dans la résidence récente et sécurisée "So Lounge" , venez découvrir ce charmant 2 pièces de 48,4 m² situé au 3ème étage avec ascenseur. Localisation idéale Situé au 21 rue de la Division du Général Leclerc à Gentilly, au sein de la résidence récente et sécurisée "SO LOUNGE". Emplacement stratégique aux portes de Paris : Transports : À proximité immédiate du RER B (Gare de Gentilly) et proche du Tramway T3a (Stade Charléty). Accès : Accès rapide au Périphérique et à l'A6. Comm...
- Louer
- 1 078 € par mois
- Ville
- 94250, Gentilly
- Durée de location
- -
- Propriétaire vérifié
- Oui
- Date
- Il y a 6 jours
- Disponible
- Contacter le propriétaire
- Services
- Contacter le propriétaire
- Dépôt de garantie
- Contacter le propriétaire
- Avance sur loyer
- Contacter le propriétaire
Emplacement