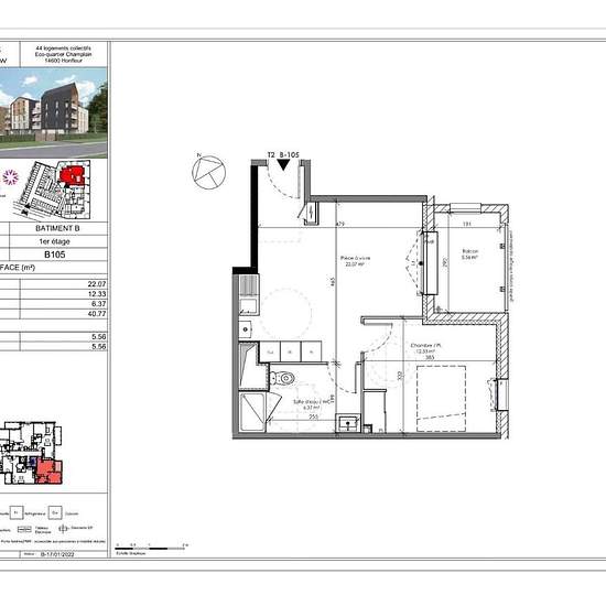
2 pièces appartement dans Honfleur
-
Surface
- 40 m²
-
Type de propriété
- Appartement
-
Pièces
- 2 pièces
À LOUER : Découvrez ce magnifique appartement neuf de type T2, idéalement situé dans le charmant éco-quartier de Honfleur, au cœur de la ville. Avec une superficie généreuse de 40 m², cet espace de vie moderne et élégant vous séduira par son agencement optimisé et ses finitions de qualité. L'appartement se compose d'un lumineux séjour, parfait pour accueillir vos moments de détente, ainsi qu'une chambre confortable, offrant un cadre paisible pour vos nuits. La cuisine, entièrement aménagée, est un véritable atout pour les amateurs de gastron...
- Louer
- 620 € par mois
- Ville
- 14600, Honfleur
- Durée de location
- -
- Propriétaire vérifié
- Oui
- Date
- Il y a 6 jours
- Disponible
- Contacter le propriétaire
- Services
- Contacter le propriétaire
- Dépôt de garantie
- Contacter le propriétaire
- Avance sur loyer
- Contacter le propriétaire
Emplacement