2 pièces appartement dans Issy les moulineaux
-
Surface
- 60 m²
-
Type de propriété
- Appartement
-
Pièces
- 2 pièces
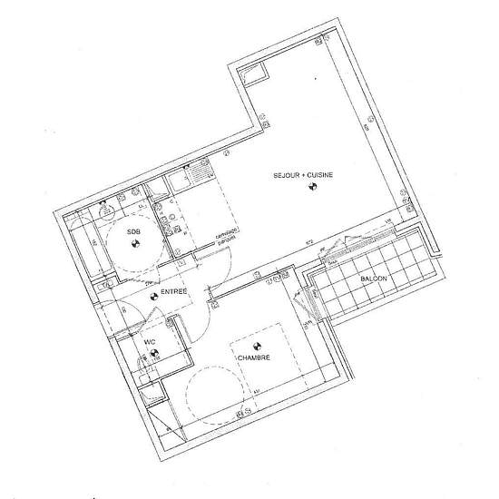
Loué : Promenade du Verger- Dans un immeuble 2013 de très bon standing, beau 2 pièces de 48,21 m2 , calme et lumineux, au 4ème étage avec ascenseur. Cet appartement comprend: une entrée, un séjour avec sa cuisine américaine aménagée (plaques de cuisson, placards, évier, hotte) de plain pied sur un balcon de 4 m2 , une chambre avec son dressing, une salle de bains, un WC indépendant. Prestations de qualités, parquet, stores électriques, domotique. Une place de parking au sous-sol. Chauffage et eau chaude collectifs. -Loyer mensuel de 1237 € C...
- Louer
- 1 135 € par mois
- Durée de location
- -
- Propriétaire vérifié
- Oui
- Date
- Il y a 15 jours
- Disponible
- Contacter le propriétaire
- Services
- Contacter le propriétaire
- Dépôt de garantie
- Contacter le propriétaire
- Avance sur loyer
- Contacter le propriétaire
Emplacement