2 pièces appartement dans Jacob bellecombette
-
Surface
- 46 m²
-
Type de propriété
- Appartement
-
Pièces
- 2 pièces
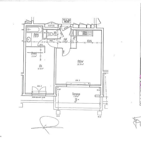
Citya generale immobiliere appartement 2 pièces à jacob bellecombette - 46,60 m² notre agence citya générale immobilière vous propose en exclusivite, sur la commune de jacob-bellecombette, un appartement de 46,60 m² situé au rez-de-jardin d'une petite copropriété bien entretenue et sécurisée par la présence d'un interphone. L'appartement 2 pièces, loué vide, comprend un séjour avec une cuisine aménagée et partiellement équipée, une terrasse, une chambre et une salle de bains. Le logement est loué avec une cave privative. La résidence possède...
- Louer
- 736 € par mois
- Durée de location
- -
- Propriétaire vérifié
- Oui
- Date
- Il y a 2 jours
- Disponible
- Contacter le propriétaire
- Services
- Contacter le propriétaire
- Dépôt de garantie
- 646 €
- Avance sur loyer
- Contacter le propriétaire
Emplacement