2 pièces appartement dans L union
-
Surface
- 39 m²
-
Type de propriété
- Appartement
-
Pièces
- 2 pièces
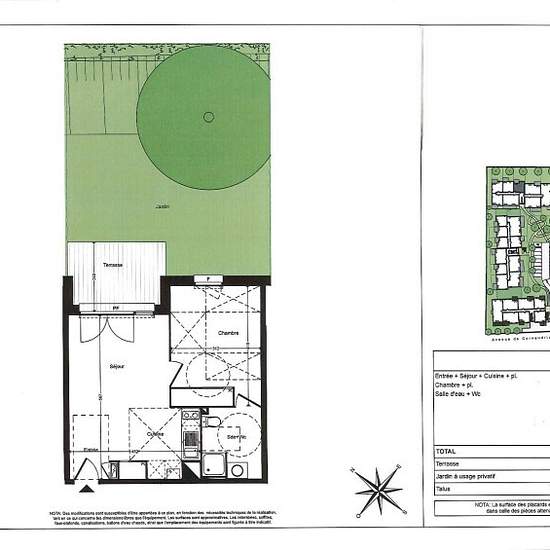
Venez découvrir cette résidence idéalement située à proximité des commerces et des commodités dans un quartier résidentiel. Nous vous proposons ce T2 situé en rez-de jardin. Il est composé d'une entrée, d'un séjour avec cuisine équipée (meubles hauts et bas, hotte aspirante, plaque votrocéramique 2 feux, frigo table top) s'ouvrant sur une terrasse de 7m² avec son jardin privatif de 28 m² , d'une chambre avec placard et d'une salle d'eau avec wc. Le logement bénéficie également d'un parking en sous-sol. Louez un logement avec Elyade et bénéfi...
- Louer
- 610 € par mois
- Ville
- 31240, L union
- Durée de location
- -
- Propriétaire vérifié
- Oui
- Date
- Aujourd'hui
- Disponible
- Contacter le propriétaire
- Services
- Contacter le propriétaire
- Dépôt de garantie
- Contacter le propriétaire
- Avance sur loyer
- Contacter le propriétaire
Emplacement