2 pièces appartement dans Le pre st gervais
-
Surface
- 60 m²
-
Type de propriété
- Appartement
-
Pièces
- 2 pièces
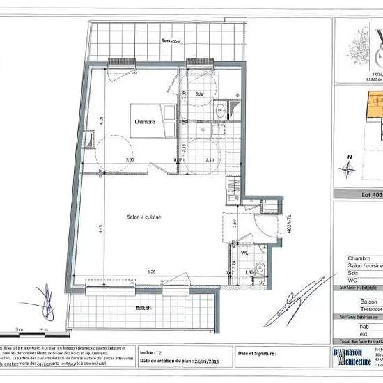
PRE SAINT GERVAIS. Au 14 rue Garibaldi. dans un immeuble de standing. au 4ème et dernier étage avec ascenseur. bel appartement 2 pièces traversant de 58.40m2 comprenant. une entrée. un séjour avec cuisine aménagée et semi équipée plaques/hotte électriques. une grande chambre donnant sur terrasse de 9m2. une salle d’eau. et un WC séparé. Balcon sur salon de 8.5m2 exposé Sud ; **Parking en sous-sol.** Pour toute demande de visite et d'information veuillez contacter Cédric JEAN (n° RSAC 5)
- Louer
- 1 155 € par mois
- Ville
- 93310, Le pre st gervais
- Durée de location
- -
- Propriétaire vérifié
- Oui
- Date
- Il y a 12 jours
- Disponible
- Contacter le propriétaire
- Services
- Contacter le propriétaire
- Dépôt de garantie
- Contacter le propriétaire
- Avance sur loyer
- Contacter le propriétaire
Emplacement