2 pièces appartement dans Levallois perret
-
Surface
- 58 m²
-
Type de propriété
- Appartement
-
Pièces
- 2 pièces
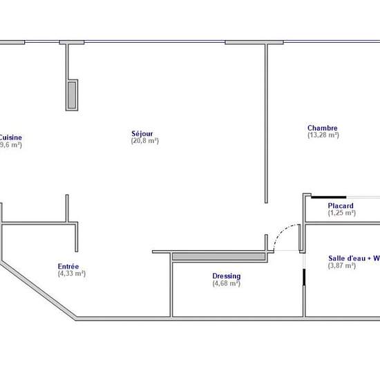
À louer! Beau 2 pièces situé à 5 minutes du métro Louise Michel, au 2ème étage avec ascenseur d'un immeuble sécurisé et très bien entretenu. Il se compose d’une entrée avec rangements, un séjour avec cuisine ouverte entièrement équipée et aménagée, une grande chambre avec placard, un dressing séparé ainsi qu'une belle salle d’eau rénovée avec WC. Chauffage et eau chaude électriques individuels. Disponible immédiatement en bail meublé. Loyer hors charges : 1564€ Charges mensuelles : 126€ par mois Loyer charges comprises : 1690€ PREMIER CONTAC...
- Louer
- 1 690 € par mois
- Ville
- 92300, Levallois perret
- Durée de location
- -
- Propriétaire vérifié
- Oui
- Date
- Hier
- Disponible
- Contacter le propriétaire
- Services
- Contacter le propriétaire
- Dépôt de garantie
- Contacter le propriétaire
- Avance sur loyer
- Contacter le propriétaire
Emplacement