2 pièces appartement dans Leves
-
Surface
- 43 m²
-
Type de propriété
- Appartement
-
Pièces
- 2 pièces
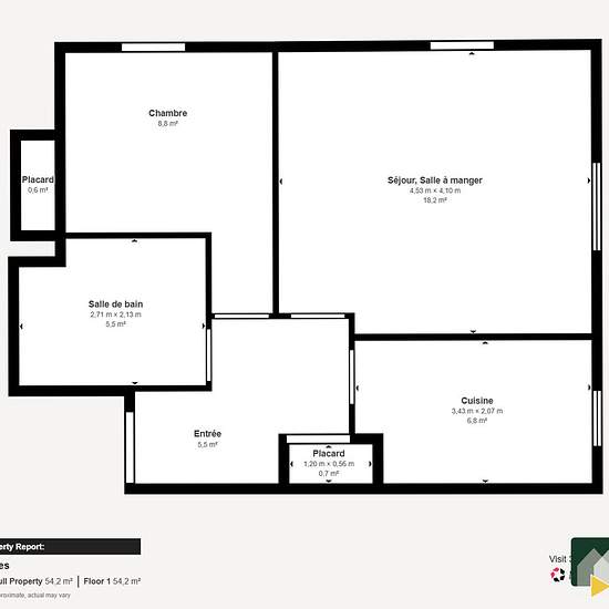
À louer appartement 2 pièces meublé - Lèves Bien Serein Immobilier vous propose ce très bel appartement 2 pièces meublé avec deux places de stationnement. Idéalement situé à proximité du centre ville de Lèves, et des axes principaux. Agencement de l'appartement (43,13 m²) : - Entrée - Séjour - Cuisine indépendante aménagée et équipée - 1 Chambre - Salle de bain, WC Côté confort : - Entièrement meublé - Fibre optique - Ouvertures en PVC avec double vitrage et volets roulants manuels - Une place de stationnement intérieure et une place de stat...
- Louer
- 650 € par mois
- Ville
- 28300, Leves
- Durée de location
- -
- Propriétaire vérifié
- Oui
- Date
- Il y a 1 jours
- Disponible
- Contacter le propriétaire
- Services
- Contacter le propriétaire
- Dépôt de garantie
- Contacter le propriétaire
- Avance sur loyer
- Contacter le propriétaire
Emplacement