2 pièces appartement dans Lyon 07
-
Surface
- 38 m²
-
Type de propriété
- Appartement
-
Pièces
- 2 pièces
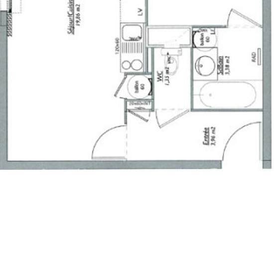
G14 CARRE GABRIEL - A SAISIR 12 rue Sabine Zlatin 69007 Lyon Agréable T2 de 38 m² avec balcon, situé au 3ème étage d'une résidence récente, calme et sécurisée. Le logement comprend un séjour de 20 m² donnant accès au balcon de 6m², une chambre avec placard mural, une salle de bains et WC. PROCHE DU TRAM T2 ROUTE DE VIENNE, DU METRO JEAN MACE ET DES COMMERCES. ZONE SOUMISE A ENCADREMENT DES LOYERS LOYER DE REFERENCE MAJORE (LOYER DE BASE A NE PAS DEPASSER) : 665.90 EUR LOYER DE BASE : 610 EUR Consommation d'énergie totale 514 EUR par an (prix...
- Louer
- 610 € par mois
- Ville
- 69007, Lyon 07
- Durée de location
- -
- Propriétaire vérifié
- Oui
- Date
- Hier
- Disponible
- Contacter le propriétaire
- Services
- 53 €
- Dépôt de garantie
- 610 €
- Avance sur loyer
- Contacter le propriétaire
Emplacement