2 pièces appartement dans Neuville sur saone
-
Surface
- 43 m²
-
Type de propriété
- Appartement
-
Pièces
- 2 pièces
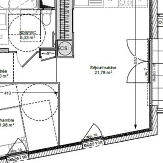
A202 PRIVILEGE 44 T2 DE 45M² AU 2ème ETAGE DANS UNE RESIDENCE RECENTE DE STANDING BBC A NEUVILLE, non loin des commerces et quai de Saône. BUS à proximité de la résidence. Pièce de vie avec coin cuisine aménagée et équipée (plaque vitro, four, hotte, meubles hauts et bas) accès balcon à vivre, une chambre séparée, salle-de-bain avec baignoire, vasque et WC. Placard de rangement dans la pièce de vie. Chauffage individuel électrique par radiateurs à panneaux rayonnants aux normes BBC Garage individuel fermé en sous-sol sécurisé. Consommation d...
- Louer
- 619 € par mois
- Durée de location
- -
- Propriétaire vérifié
- Oui
- Date
- Hier
- Disponible
- Contacter le propriétaire
- Services
- 50 €
- Dépôt de garantie
- 628 €
- Avance sur loyer
- Contacter le propriétaire
Emplacement