2 pièces appartement dans Nice

Surface
51 m²
Type de propriété
Appartement
Pièces
2 pièces

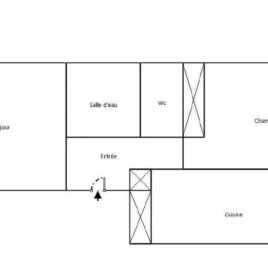
Nice / bas grosso. À louer en meublé à 5mn à pieds de la mer dans copropriété avec ascenseur 2 pièces meublés composé d'une entrée, séjour, cuisine, salle d'eau, wc indépendant, cuisine et chambre, un balcon et une terrasse. Loyer mensuel hors charge : 814,53€ provisions sur charges : 290€ (tout collectif : eau froide, chaude, chauffage, entretien copro et ascenseur). Dépôt de garantie : 1104,53€ honoraires d'agence : 663€ ttc (dont 153€ d'état des lieux d'entrée). Infos et visites eric au .

Louer
1 105 € par mois
Ville
06000, Nice
Durée de location
-
Propriétaire vérifié
Oui
Date
Il y a 2 jours
Disponible
Contacter le propriétaire
Services
Contacter le propriétaire
Dépôt de garantie
1 105 €
Avance sur loyer
Contacter le propriétaire
Emplacement