2 pièces appartement dans Nimes
-
Surface
- 60 m²
-
Type de propriété
- Appartement
-
Pièces
- 2 pièces
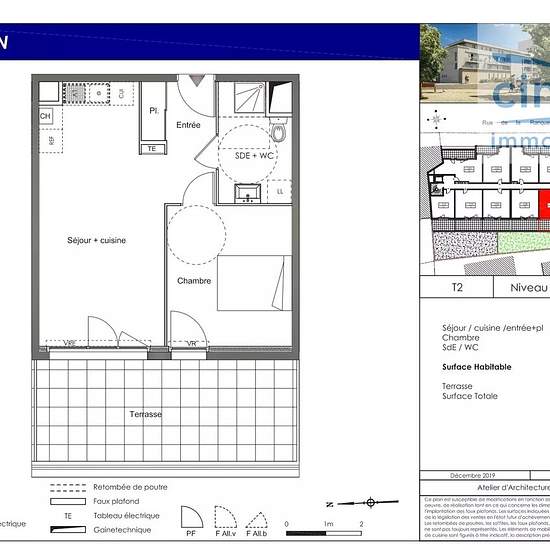
Appartement neuf 2 pièces avec terrasse et stationnement aux portes du centre-ville de Nîmes. Appartement idéalement situé à 5 minutes à pied de l'avenue Jean Jaurès, à 8 minutes en voiture de l'autoroute et à 10 minutes de la gare, arrêt de bus au pied de la résidence. Appartement neuf de type 2 de 41.60 m² au premier étage d'une résidence neuve et sécurisée comprenant une entrée avec placard, une pièce de vie avec cuisine aménagée et semi-équipée, une chambre avec placard, une salle d'eau avec WC. En annexe, une grande terrasse de 17.30 m²...
- Louer
- 561 € par mois
- Ville
- 30900, Nimes
- Durée de location
- -
- Propriétaire vérifié
- Oui
- Date
- Il y a 1 jours
- Disponible
- Contacter le propriétaire
- Services
- Contacter le propriétaire
- Dépôt de garantie
- Contacter le propriétaire
- Avance sur loyer
- Contacter le propriétaire
Emplacement