2 pièces appartement dans Paris 16
-
Surface
- 44 m²
-
Type de propriété
- Appartement
-
Pièces
- 2 pièces
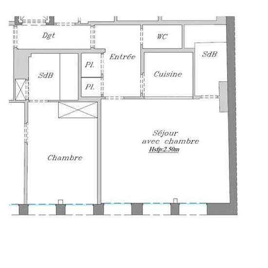
NOUVELLE EXCLUSIVITE!!!! PARIS XVI!!!! Quartier Chaillot-Iena Dans une copropriété de standing de 1930 avec gardien, au calme et lumineux, nous vous proposons un appartement meublé de 2 pièces de 44m² loi carrez comprenant : une entrée avec placards, une cuisine équipée ouverte sur un vaste séjour, une chambre, une salle de bains, WC séparés. Une cave complète le bien. Copropriété de 60 lots - dont 54 lots habitation.().
- Louer
- 1 685 € par mois
- Ville
- 75016, Paris 16
- Durée de location
- -
- Propriétaire vérifié
- Oui
- Date
- Il y a 2 jours
- Disponible
- Contacter le propriétaire
- Services
- Contacter le propriétaire
- Dépôt de garantie
- Contacter le propriétaire
- Avance sur loyer
- Contacter le propriétaire
Emplacement