2 pièces appartement dans Roques
-
Surface
- 40 m²
-
Type de propriété
- Appartement
-
Pièces
- 2 pièces
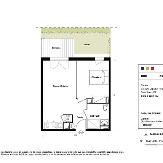
A Roques sur Garonne,route de Villeneuve, agréable appartement deux pièces situé en rez-de-jardin . Il est composé d'une entrée, d'un séjour avec cuisine équipée (évier inox, plaque 2 feux, hotte, meubles hauts et bas, frigo top), d'une chambre avec placard, d'une salle d'eau aménagée avec WC, d'une terrasse de 5.61 m² et d'un jardin de 9.01m². Il bénéficie de deux places de parking aérien. Louez un logement avec Elyade et bénéficiez gratuitement pendant 12 mois d'ALLOLILY, le service de conciergerie privée accessible à tous (sans obligation...
- Louer
- 579 € par mois
- Ville
- 31120, Roques
- Durée de location
- -
- Propriétaire vérifié
- Oui
- Date
- Il y a 15 jours
- Disponible
- Contacter le propriétaire
- Services
- Contacter le propriétaire
- Dépôt de garantie
- Contacter le propriétaire
- Avance sur loyer
- Contacter le propriétaire
Emplacement