2 pièces appartement dans Sartrouville
-
Surface
- 42 m²
-
Type de propriété
- Appartement
-
Pièces
- 2 pièces
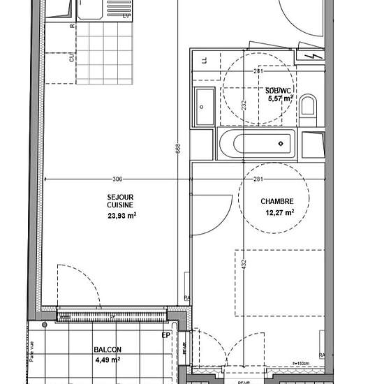
Quartier des Dix Arpents. Au dernier étage d'une copropriété récente de standing et sans vis-à-vis, cet appartement en parfait état se distingue par son agencement fonctionnel. Il comprend une entrée, un séjour avec cuisine ouverte d'environ 24 m² entièrement équipée, donnant sur une terrasse plein ciel exposée sud, sans vis-à-vis. Une belle chambre ainsi qu'une salle de bains avec WC complètent l'ensemble. Une place de parking est incluse. Bail meublé, chauffage et eau chaude compris. Appartement confortable et prêt à vivre. Coup de coeur a...
- Louer
- 1 220 € par mois
- Ville
- 78500, Sartrouville
- Durée de location
- -
- Propriétaire vérifié
- Oui
- Date
- Aujourd'hui
- Disponible
- Contacter le propriétaire
- Services
- Contacter le propriétaire
- Dépôt de garantie
- Contacter le propriétaire
- Avance sur loyer
- Contacter le propriétaire
Emplacement