2 pièces appartement dans Sartrouville

Surface
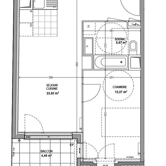
42 m²
Type de propriété
Appartement
Pièces
2 pièces

Quartier des Dix Arpents. Au dernier étage d'une copropriété récente de standing et sans vis-à-vis, cet appartement en parfait état se distingue par son agencement fonctionnel. Il comprend une entrée, un séjour avec cuisine ouverte d'environ 24 m² entièrement équipée, donnant sur une terrasse plein ciel exposée sud, sans vis-à-vis. Une belle chambre ainsi qu'une salle de bains avec WC complètent l'ensemble. Une place de parking est incluse. Bail meublé, chauffage et eau chaude compris. Appartement confortable et prêt à vivre. Coup de coeur a...

Louer
1 120 € par mois
Durée de location
-
Propriétaire vérifié
Oui
Date
Il y a 2 jours
Disponible
Contacter le propriétaire
Services
Contacter le propriétaire
Dépôt de garantie
Contacter le propriétaire
Avance sur loyer
Contacter le propriétaire
Emplacement