2 pièces appartement dans Schiltigheim
-
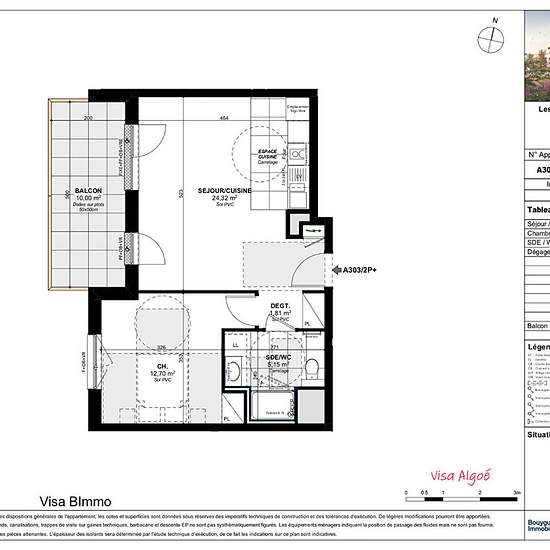
Surface
- 43 m²
-
Type de propriété
- Appartement
-
Pièces
- 2 pièces
NEUF T2 43.72m2 rue Clémenceau ? SCHILTIGHEIM Sans frais d'agence Logement conventionné soumis à des CONDITIONS DE RESSOURCES. Au 2eme étage avec ascenseur, dans immeuble neuf de sept étages, devenez les premiers locataires de cet appartement T2 de 43.72m2. Situé rue Clémenceau à Schiltigheim, à proximité immédiate nombreux commerces (LECLERC, boulangerie, pharmacie) et des écoles, avec l'École des Pruneliers et le Collège Lamartine à moins de 500 mètres. Le logement se compose d'un séjour/cuisine aménagée ouvrant sur un balcon, d'une chambr...
- Louer
- 580 € par mois
- Ville
- 67300, Schiltigheim
- Durée de location
- -
- Propriétaire vérifié
- Oui
- Date
- Aujourd'hui
- Disponible
- Contacter le propriétaire
- Services
- Contacter le propriétaire
- Dépôt de garantie
- Contacter le propriétaire
- Avance sur loyer
- Contacter le propriétaire
Emplacement