2 pièces appartement dans St andre de cubzac
-
Surface
- 40 m²
-
Type de propriété
- Appartement
-
Pièces
- 2 pièces
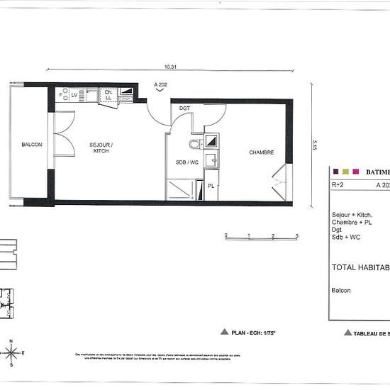
Située au coeur du quartier Bois Milon, dans une résidence calme, proche des transports, du centre ville et des commerces. Nous vous proposons ce T2 composé d'un séjour avec cuisine équipée (bloc évier inox, plaque 2 feux, hotte, meubles hauts et bas, frigo top), une chambre avec placard, salle d'eau aménagée avec WC, un balcon de 6.54m², un parking aérien.
- Louer
- 452 € par mois
- Durée de location
- -
- Propriétaire vérifié
- Oui
- Date
- Il y a 5 jours
- Disponible
- Contacter le propriétaire
- Services
- 45 €
- Dépôt de garantie
- 452 €
- Avance sur loyer
- Contacter le propriétaire
Emplacement