2 pièces appartement dans St andre de cubzac
-
Surface
- 37 m²
-
Type de propriété
- Appartement
-
Pièces
- 2 pièces
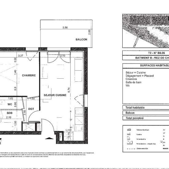
La ville de Saint André de Cubzac, située à 20min de Bordeaux, vous propose la résidence labélisée BBC à l'esthétique comtemporaine. Vous bénéficierez d'une situation privilégiée et d'un panel de commodités pour une vie agréable au quotidien. Venez découvrir cet apaprtement T2 situé au rez-de-chaussée. Il est composé d'un séjour avec cuisine équipée (évier, meubles hauts et bas, hotte aspirante, réfrigérateur table TOP, plaque 2 feux vitrocéramique) ouvert sur le balcon , d'une chambre avec parquet stratifié, d'une salle de bain aménagée e...
- Louer
- 440 € par mois
- Durée de location
- -
- Propriétaire vérifié
- Oui
- Date
- Hier
- Disponible
- Contacter le propriétaire
- Services
- 65 €
- Dépôt de garantie
- 440 €
- Avance sur loyer
- Contacter le propriétaire
Emplacement