2 pièces appartement dans St fargeau ponthierry
-
Surface
- 50 m²
-
Type de propriété
- Appartement
-
Pièces
- 2 pièces
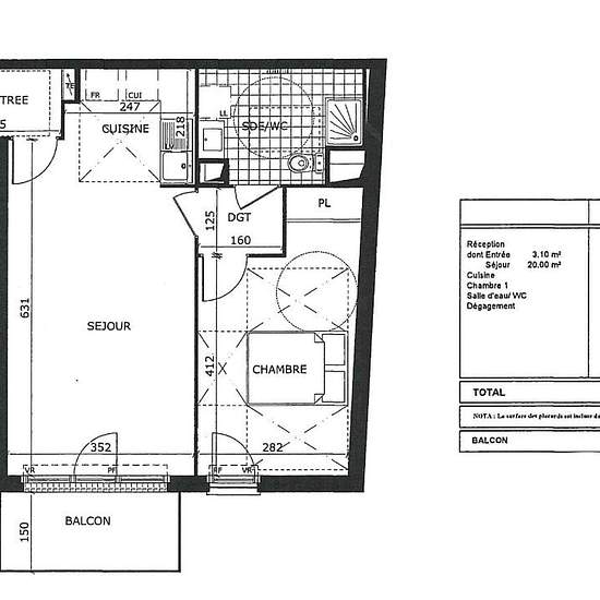
L'ADRESSE CONCEPT PREMIUM, spécialiste de la location sur le secteur de Melun et ses alentours vous propose à deux pas de la gare, dans résidence récente et sécurisée, appartement 2 pièces comprenant une entrée, séjour avec coin cuisine aménagée et semi équipée donnant sur un balcon, une chambre avec placard, une salle d'eau avec WC. Jouissance privative d'une place de parking en sous-sol ! EAU FROIDE - EAU CHAUDE ET CHAUFFAGE COMPRIS DANS LES CHARGES ! Libre de suite ! Bien sou/mis à une assurance Garantie des Loyers Impayés, conditions d'a...
- Louer
- 830 € par mois
- Durée de location
- -
- Propriétaire vérifié
- Oui
- Date
- Il y a 9 jours
- Disponible
- Contacter le propriétaire
- Services
- Contacter le propriétaire
- Dépôt de garantie
- Contacter le propriétaire
- Avance sur loyer
- Contacter le propriétaire
Emplacement