2 pièces appartement dans St jory
-
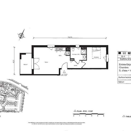
Surface
- 45 m²
-
Type de propriété
- Appartement
-
Pièces
- 2 pièces
Situé dans notre résidence avec piscine, au coeur de la commune de SAINT JORY, idéalement située à 15 mn au nord de Toulouse par l'A62, ou bien en train. Visite virtuelle sur notre site ELYADE (Réf: 19376) Vous profiterez d'un cadre de vie rural sur les bords des Berges du Canal du Midi, de son marché de plein vent, et d'une vie associative et commerçante dynamique. Sa gare, ses écoles maternelles et primaires, son collège, sont tous situés à 5 mn à pied de la résidence, pour vous rendre la vie plus facile. L'appartement est composé d'une ...
- Louer
- 518 € par mois
- Ville
- 31790, St jory
- Durée de location
- -
- Propriétaire vérifié
- Oui
- Date
- Hier
- Disponible
- Contacter le propriétaire
- Services
- 65 €
- Dépôt de garantie
- 518 €
- Avance sur loyer
- Contacter le propriétaire
Emplacement