2 pièces appartement dans St ouen sur seine

Surface
60 m²
Type de propriété
Appartement
Pièces
2 pièces

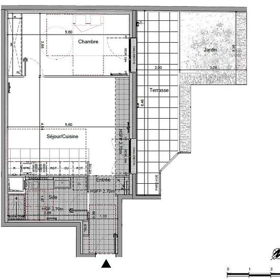
Dans une très belle résidence neuve de standing avec gardien et proposant des services innovants tels que des boites à colis connectées, nous vous proposons à la location ce studio Neuf. Situé en Rez-de-Jardin, cet appartement de 53,10 m² se compose : d'une entrée avec placard, un séjour spacieux avec placard et d'une cuisine aménagée et semi-équipée (plaques de cuisson à induction et hotte), d'une chambre avec placard, d’une salle d'eau moderne équipée d'un sèche-serviette et d’un WC. Une terrasse et un Jardin d’environ 26 m² pour profiter ...

Louer
1 215 € par mois
Durée de location
-
Propriétaire vérifié
Oui
Date
Hier
Disponible
Contacter le propriétaire
Services
Contacter le propriétaire
Dépôt de garantie
Contacter le propriétaire
Avance sur loyer
Contacter le propriétaire
Emplacement