2 pièces appartement dans St ouen sur seine
-
Surface
- 60 m²
-
Type de propriété
- Appartement
-
Pièces
- 2 pièces
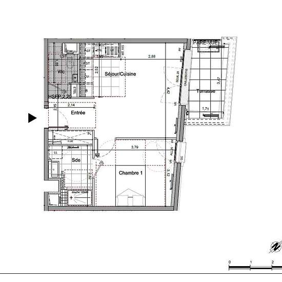
Dans une très belle résidence neuve de standing avec gardien et proposant des services innovants tels que des boites à colis connectées, nous vous proposons à la location cet appartement de 2 pièces. Situé au 6ème avec ascenseur, cet appartement de 43,40 m² se compose : d’une entrée avec placard, d’une cuisine aménagée et semi-équipée (plaques de cuisson à induction et hotte) ouverte sur le grand séjour donnant sur une terrasse de 6m², une chambre spacieuse et d’une salle d'eau avec un WC indépendant . Les charges incluent le chauffage, l’ea...
- Louer
- 1 210 € par mois
- Ville
- 93400, St ouen sur seine
- Durée de location
- -
- Propriétaire vérifié
- Oui
- Date
- Aujourd'hui
- Disponible
- Contacter le propriétaire
- Services
- Contacter le propriétaire
- Dépôt de garantie
- Contacter le propriétaire
- Avance sur loyer
- Contacter le propriétaire
Emplacement