2 pièces appartement dans Suresnes
-
Surface
- 49 m²
-
Type de propriété
- Appartement
-
Pièces
- 2 pièces
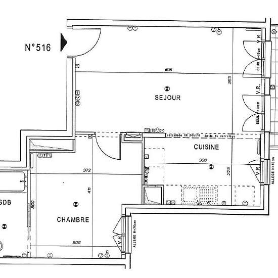
SURESNES BELVÉDÈRE Dans résidence de standing, au 1er étage, appartement 2 pièces de 49,57m², au calme, comprenant un séjour avec cuisine ouverte aménagée donnant sur balcon de 6.25 m², une chambre avec sa salle de bains attenante, une cave et un emplacement de parking en sous-sol. Résidence sécurisée avec gardien et située à proximité des commerces (4 min), du T2 "Suresnes Belvédère" (7min) et à 8 min du centre ville. Chauffage et eau chaude collectifs. Appartement sera rénové à la sortie du locataire actuel et sera disponible au 1er févrie...
- Louer
- 1 510 € par mois
- Ville
- 92150, Suresnes
- Durée de location
- -
- Propriétaire vérifié
- Oui
- Date
- Aujourd'hui
- Disponible
- Contacter le propriétaire
- Services
- Contacter le propriétaire
- Dépôt de garantie
- Contacter le propriétaire
- Avance sur loyer
- Contacter le propriétaire
Emplacement