2 pièces appartement dans Villeneuve les avignon
-
Surface
- 45 m²
-
Type de propriété
- Appartement
-
Pièces
- 2 pièces
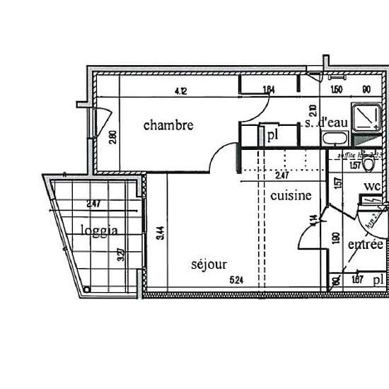
A louer sur Villeneuve-Lès-Avignon, appartement T2 de 45.85m² - Avenue Pierre Mendes France Venez découvrir cet appartement récent au 1er étage d'une résidence calme et sécurisée avec ascenseur. Il se compose d'une entrée avec placard, d'un lumineux séjour avec cuisine ouverte de 19.75 m² donnant accès sur une belle terrasse de 6.5m², d'une chambre de 11.54 m² avec salle d'eau et WC indépendant. Vous bénéficiez également d'une place de parking privative et d'une cave. Chauffage au sol collectif inclus dans les charges. Disponible le 01/02/20...
- Louer
- 720 € par mois
- Durée de location
- -
- Propriétaire vérifié
- Oui
- Date
- Il y a 21 jours
- Disponible
- Contacter le propriétaire
- Services
- Contacter le propriétaire
- Dépôt de garantie
- Contacter le propriétaire
- Avance sur loyer
- Contacter le propriétaire
Emplacement