2 pièces appartement dans Villeneuve sur lot
-
Surface
- 44 m²
-
Type de propriété
- Appartement
-
Pièces
- 2 pièces
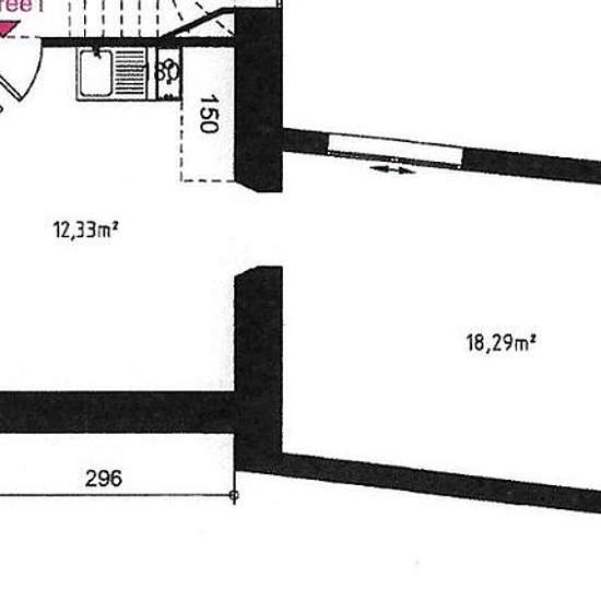
Villeneuve sur lot, appartement t2 meublé de 41,12 m² joliment décoré et en très bon état situé en rez-de-chaussee d'une résidence tranquille. Séjour donnant sur jardin privatif d'environ 100 m². Ses atouts : * pièce de vie lumineuse * cuisine équipée et logement très agréable * chambre avec salle d'eau attenante * proche des commodités à pied classe énergie d. Les informations sur les risques auxquels ce bien est exposé sont disponibles sur le site géorisques : logement disponible retrouvez toutes nos offres sur le site de la maison de l'im...
- Louer
- 585 € par mois
- Durée de location
- -
- Propriétaire vérifié
- Oui
- Date
- Il y a 3 jours
- Disponible
- Contacter le propriétaire
- Services
- Contacter le propriétaire
- Dépôt de garantie
- 558 €
- Avance sur loyer
- Contacter le propriétaire
Emplacement