2 pièces appartement dans Villiers sur marne
-
Surface
- 60 m²
-
Type de propriété
- Appartement
-
Pièces
- 2 pièces
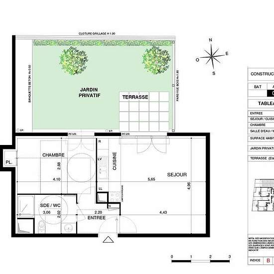
Entre Paris et Marne-la-Vallée, dans la ville de VILLIERS-SUR-MARNE, proche commerces et commodités, nous vous proposons dans la résidence neuve VILLA ROSA, un appartement T2 n°A002 de 47.20 m². Situé au RDC avec jardin de 30 m² et terrasse de 5m², il comprend une entrée, un séjour de 25.70 m² avec cuisine ouverte, une chambre de 12.70 m², une salle d'eau avec WC. Au 2ième sous-sol, un emplacement de stationnement n°32. Chauffage et eau chaude collectifs, entretien parties communes, ascenseur et espaces verts communs, compris dans les provis...
- Louer
- 733 € par mois
- Durée de location
- -
- Propriétaire vérifié
- Oui
- Date
- Aujourd'hui
- Disponible
- Contacter le propriétaire
- Services
- Contacter le propriétaire
- Dépôt de garantie
- Contacter le propriétaire
- Avance sur loyer
- Contacter le propriétaire
Emplacement